Kontakt
Ing. arch. Romana Vantarová

Dve stodoly jeden dom

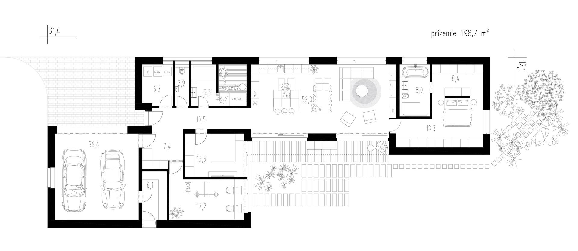
Dve stodoly a pritom jeden dom :) Architektúru domu vytvárajú dve stodoly rôzneho materiálového riešenia - biela omietka alebo prevetrávaná fasáda s dizajnom dreva. Aby sa dosiahlo zväčšenie príjazdovej cesty, hmoty sú od seba paralelne odsunuté a tým zo strany záhrady taktiež vzniká polouzavretý súkromný priestor pre relax. Dom vyniká svojimi čistými líniami a minimalistickým dizajnom. Benefitom dispozičného riešenia je súkromný wellness, prechod od garáže priamo do domu, vzdušnosť a množstvo úložných priestorov. Interiér je prepojený so záhradou a komunikuje priamo s hlavnou terasou. Dispozícia so 4 izbami je ideálnym riešeným pre rodinu s deťmi ako aj pre pár, ktorý využije izby na pracovňu, hosťovskú izbu alebo posilňovňu. Dom je vhodný aj na užšie pozemky.

Obytné miestnosti 4
Kúpelne 2
Max. výška strechy 6,3 m
Obytná plocha 101,0 m²
Zastavaná plocha 250,4 m²
Šírka pozemku 16,1 m
Dĺžka pozemku 38,0 m

do 300 000 €

Cenová kategória

198,7 m²

Celková úžitková plocha
Interiér domu

Interierový dizajn plný nápadov, ktoré dobijú vašu energiu.

Interiér domu

Interierový dizajn plný nápadov, ktoré dobijú vašu energiu.

Mám záujem o výstavbu
Mám záujem len o projekt
Mám inú otázku
Súhlasím s tým aby spoločnosť IDEÁLNE DOMY, s.r.o. spracovávala moje osobné údaje (meno, priezvisko, email a telefónne číslo) na evidenciu vzťahov so zákazníkmi. *
Pred odoslaním musíte vyplniť súhlas so spracovaním osobných údajov
Prosím vyplňte všetky požadované polia:
Kontaktný formulár bol úspešne odoslaný. Do 24 hodín Vás budeme spätne kontaktovať.
E-mail nebol zadaný v správnom tvare
Kontaktný formulár nebolo možné odoslať. Prosím kontaktujte nás priamo na info@slovenskydom.sk alebo +421 917 133 204.
Odoslať správu
Výstavba

Máte záujem
o výstavbu u nás?

Vyplňte kontaktný formulár a budeme Vás kontaktovať. Do 24 hodín Vás kontaktujeme späť a preberieme spolu detaily.

+421 917 133 204

alebo volajte