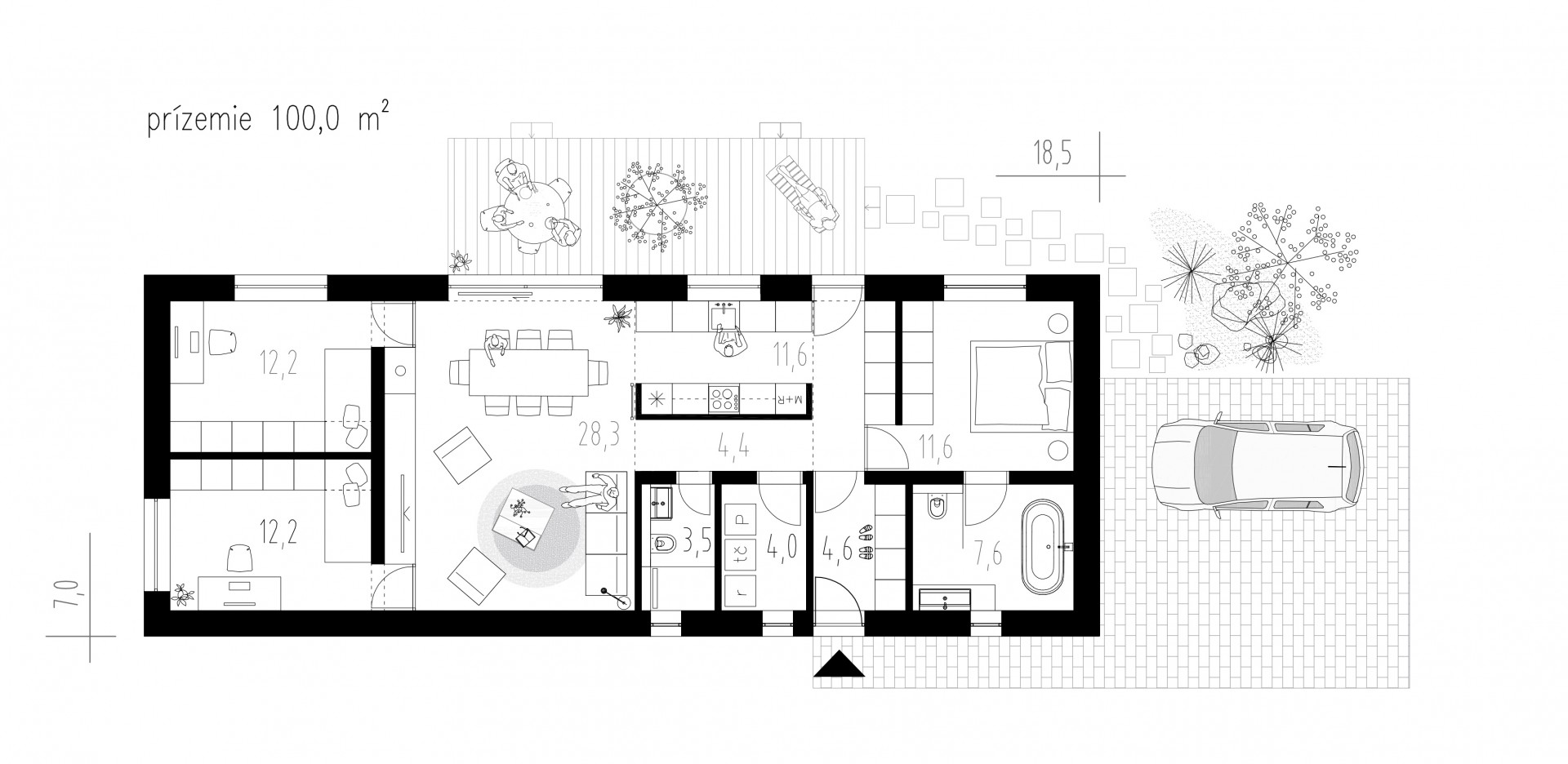
Minimalistický dizajn domu s odkazom na tradičnú architektúru. Dom je vhodný pre 4 člennú rodinu. Vyniká hravým interiérom s možnosťou využitia "tretieho rozmeru" - herne, ktorá je situovaná nad kuchyňou, wc a technickou miestnosťou. Architektúra zaujme čistými líniami, pričom akcentom sa stávajú štvorcové okná s citlivým osadením na fasáde. Dom je vhodný aj na užšie pozemky.
| Obytné miestnosti | 4 |
| Kúpelne | 2 |
| Max. výška strechy | 6,3 m |
| Obytná plocha | 129,5 m² |
| Zastavaná plocha | 75,0 m² |
| Šírka pozemku | 14,0 m |
| Dĺžka pozemku | 26,5 m |
Vyplňte kontaktný formulár a budeme Vás kontaktovať. Do 24 hodín Vás kontaktujeme späť a preberieme spolu detaily.